Central Heating New Zealand is a leading supplier of gas boilers in New Zealand. For our commercial range, the main strength is our ability to provide design and specification assistance for complex cascade solutions. We provide full solution proposals for specifiers and installers nationwide by including system schematics, equipment layout drawings, and cascade control planning to ensure the required performance and boiler operation is achieved.
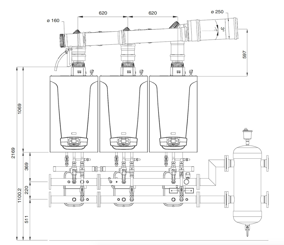
For some projects a simple vertical or horizontal balanced flue from each boiler is not possible. In these situations we are also able to provide sizing and planning for a cascade flue system. The Baxi commercial boilers can be connected into a common flue riser with up to 6 boilers terminating in a common flue. Baxi have provided sizing charts for various scenarios and provide a polypropylene header system that includes a shutter kit (non-return valve) for each boiler.

From the polypropylene header we size and supply the remaining flue system in the Poujoulat Condensor series modular flue. This systems consists of multiple flue components that can be easily assembled with a locking band attachment system to allow a flue system for a project to be easily assembled on site. The Poujoulat Condensor system is manufactured from high grade 316L stainless steel ensuring high corrosion resistance and a long life.

As the Baxi condensing boilers have flue exhaust temperatures less than 70-96°C (depending on exact boiler model) the flue system does not need to be insulated, this allows for a more cost effective flue system to be used with a smaller external diameter.
Due to the increased interest in cascade flue systems for our commercial boilers, we have increased our stocked range to now be able to provide smaller cascades from stock and can provide parts to allow a flue to be modified on site to work around unforeseen site constraints.
For your next project that requires a cascade flue, please get in touch for free sizing, planning, and specification.

Projects
Te-Hopai Rest Home & Hospital – Wellington
The Te-Hopai Hospital has four Baxi Duotec MP 1.50 (50kW) boilers terminating in a 12m vertical 200mm Poujoulat Condensor flue run up the outside of the building. The boilers are hydraulically split into pairs, one pair provides domestic hot water heating and the other provides LTHW to 9 underfloor heating manifolds and fan coils. Each pair of boilers are independently controlled.
The Rydges Airport Hotel – Wellington
The Rydges Hotel consists of a cascade of 8 Baxi Duotec MP+ 1.110 (110kW) gas boilers. The boilers are positioned in the ground floor plant room with two 4 boiler floor standing frame kits mounted back to back. Each set of 4 boilers are connected into a common PP header that terminates into a 20m tall 250mm Poujoulat stainless steel riser. Tight spacing in the plant room required sections of the horizontal run of the flue to fall away from the boilers and multiple condensate collection points were required.









